A continuación os ofrezco el primero de una -larga, espero…- serie de artículos técnicos en los que quiero acercaros algunas de mis experiencias en la redacción de Proyectos y la dirección de Obras, casi siempre en edificios de vivienda plurifamiliar.
En el primero de ellos hablaré de algunos de los errores más típicos que se puede cometer en los planos técnicos de un proyecto de arquitectura. Como sabéis, en proyectos de cierta envergadura es conveniente separar el proyecto básico del de ejecución. El primero ha de servir, sobretodo, para ofrecer respuesta a todos los condicionantes urbanísticos y del planeamiento municipal, así como de normativas de obligado cumplimiento de ámbito estatal ( CTE) y autonómico: ecoeficiencia, accesibilidad, etc… Es, por tanto, un documento legal con el que se obtiene la licencia de Obras.
Para poder construir, como ya sabéis, es necesario ampliar con información técnica, compuesta por una parte de documentación gráfica y otra escrita (memorias, pliegos de condiciones, mediciones…). En cuanto a la parte gráfica, podríamos distinguir 5 grandes grupos de planos:
- Planos de replanteo de Estructura
- Planos de armado de Estructura
- Planos de Instalaciones
- Planos de replanteo de Arquitectura
- Planos de Detalle
Generalmente, exceptuando algunos casos, el Arquitecto subcontrata a equipos colaboradores en las tareas de cálculo de instalaciones y estructuras, pero hay toda una labor de coordinación entre los diferentes equipos que es tarea exclusiva del Arquitecto redactor del proyecto.
Unos planos bien dibujados son la garantía de una puesta en Obra sin sorpresas y es un objetivo que sólo se alcanza si hay un trabajo previo en el despacho, de estudio del proyecto y de coordinación entre los diferentes agentes y elementos constructivos que configurarán la realidad edilicia.
Es de eso precisamente de lo que quiero escribir y es un trabajo fundamental para conseguir los objetivos de toda obra, no sólo desde el punto de vista de los técnicos y la Dirección Facultativa, sino del Promotor y Constructor, es decir, que la Obra se haga en planning y cumpliendo objetivos económicos, reduciendo al máximo la aparición de los temidos contradictorios.
En cierta ocasión le preguntaron a Juan Ramón Jiménez, autor de Platero y Yo, si realmente había existido un Platero, a lo que contestó que el burrito estaba inspirado en los numerosos animales que en su niñez le habían acompañado. De la misma manera, los ejemplos que expondré, se extraen de diferentes Obras en las cuales, de alguna manera he estado involucrado en la redacción de su proyecto y en la Dirección Facultativa, pero diremos que es una Obra de unas 150 viviendas, con local en planta baja, aparcamiento en sótano y zona ajardinada interior con equipamientos deportivos, como una pista de paddel y una piscina.
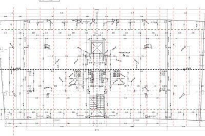
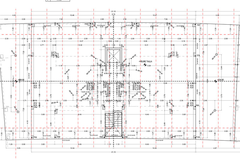
Empiezo hoy hablando de los planos de replanteo de Estructura que son aquellos que han de servir para poder construir los elementos estructurales, y que sintetizan la información de dimensiones y distancias a ejes de cimientos, muros de contención, forjados, losas, pilares, escaleras, etc.
Errores o deficiencias en planos para replantear Estructura
DEFICIENCIAS DE ACOTACIÓN
Falta de cotas
Con frecuencia faltan cotas de algún pilar, reservas en forjados, o bien cotas de límites de forjado. A veces, si la geometría es complicada, conviene acotar ángulos o bien establecer unos ejes auxiliares de acotación con una cierta frecuencia para acotar posteriormente la distancia de la intersección con estos ejes virtuales.
En el siguiente caso, en que el forjado debía ser ligeramente curvo, se trazaron dos ejes auxiliares y después, cada dos metros se dibujó una línea perpendicular al sentido de la curva. Se acotó cada intersección entre la curva y dichas líneas.
Los pilares se han de acotar siempre al vértice inamovible, que grafiamos generalmente con un cuadrado negro. Muchas veces, la dimensión del pilar en proyecto y la real en cuadro de pilares difiere. En esos casos, la única cota fiable es la que se toma en la que conocemos como “cara buena”.
RESERVAS:
Falta de reservas
- Es importante que los bloques de sanitarios ( y fregaderos) incorporen el hueco de reserva en la capa que corresponda. Se han dado casos en que se ha explotado un bloque de plato de ducha, para modificar el tamaño, y se ha borrado la reserva, o se ha cambiado de capa, con la consiguiente omisión de tantas reservas como platos de ducha había en esa tipología de vivienda.
- Reservas para instalaciones de locales. Normalmente transcurren colgadas del techo de la planta de sótano -1 y pinchan hacia arriba, atravesando el forjado de planta baja. Pueden ser de gas, electricidad, agua, telecomunicaciones…
- En cuartos de instalaciones:
- Cuidado con las reservas de ventilación de sótanos ( Sobrepresión de escaleras, ventilación de trasteros, extracción de humos de aparcamiento…) porque suelen concidir con saltos en forjados, por estar en los límites del edificio, y coincidiendo con fachada. En estos casos, sólo si es estrictamente necesario, es conveniente interrumpir la continuidad de una viga y se deberá resolver el armado alrededor del hueco de reserva.
- Reservas para lavadoras cuando el bajante está alejado de ésta y hay que pinchar el forjado para pasar tubo de pequeña evacuación y cruzar por el falso techo del piso inferior. Con frecuencia se omiten en los planos estas reservas pequeñas, que después se deberán practicar taladrando el forjado. Hay constructores partidarios de no prever reservas para estos pasos de instalaciones ( incluso para inodoros y bajantes) y perforar posteriormente según replanteo final en fase de albañilería.
- Reservas para desagüe de rejas interceptoras en aparcamiento o urbanización interior de planta baja.
- Reservas para instalación de fontanería o calefacción en viviendas en dúplex, en que hay que comunicar las dos plantas.
- Reservas extra cuando hay islas interiores urbanizadas, para pasar desagües, tuberías de drenaje o suministros a piscina a través de muros de contención, o viga de coronación de muro pantalla.
- Reservas para recogida de aguas en sótanos. Ejemplo: edificio con dos plantas de sótano. La recogida de las rejas en los arranques de las rampas que suben a planta baja se han de conducir a los pozos. En esos casos, hay que prever una conexión a los albañales bajo solera ( o losa). Conviene, pues, dejar esperas bajo las rejas, en suelo de sótano -2. Además, desde la entrada en vigor del CTE, todo bajante de desagüe que transcurra empotrado deberá ser accesible mediante arqueta registrable.
- Reservas para gas en canto de forjado: Si se dejan reservas de poco calado ( 5 cms.) en los cantos, y no se prevé doblar el zuncho en planos de armado, se tendrá que controlar muy bien en obra, ya que suelen dejar unos trozos de porex, pero no dejan separadores para asegurar el recubrimiento mínimo. Tiene difícil arreglo:
-Reservas para subida de instalaciones del sótano y, si es necesario, para volver a bajar. Por ejemplo, instalación de bocas contra incendios (BIE)
-Reservas para desagües en armarios de contadores eléctricos y de agua.
Bien, lo acabo aquí. Seguirá con otros ejemplos de casos reales que, como decía, me han sucedido y, casi como un recordatorio, pongo a disposición vuestra y os animo a que hagáis cuantas sugerencias, críticas o comentarios creáis oportunos.
Saludos.
Escrito por: Javier Luna Corento
Últimas entradas de Javier Luna (ver todo)
- Emili Donato: sus 5 mejores obras en Barcelona - 6 diciembre, 2025
- Construcción Industrializada en Cataluña: Revolución Sostenible y Eficiente - 24 septiembre, 2025
- Arquitectura Brutalista en Barcelona: Guía Visual, Historia y Tendencias - 21 abril, 2025
¡Haz clic para puntuar esta entrada!
(Votos: 0 Promedio: 0)








